Pretty While you can have the legs of.
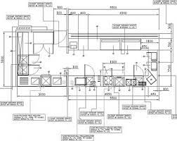
Its very simple convenient and quick to design the professional looking Floor Plans of any difficulty in ConceptDraw DIAGRAM.Safety regulations for capacity in accordance with square footage of the restaurant influences the layout and seating of a restaurant. This means that in a restaurant with 60 seats restaurant kitchen should take an area of 300 square feet.
The floor plans are necessary for architects builders designers. Another given is the triangulation rule that governs the relationship between storage preparation and cleaning.Restaurant kitchen design trends include an increased focus on sustainability compact equipment designed for smaller square footage and visually appealing equipment for open kitchen layouts.The kitchen is the heart and soul of a restaurant.
Heres our guide for how to set up a small commercial kitchen in 3 easy steps. Light shades of color are used if you have a small space. Design and ambiance carry through to restaurant restrooms. This typically requires the use of a sandwich-top refrigerator or cold bain marie as it is often referenced in professional kitchen environments and is a necessity in any small cafe kitchen layout. Both countertops are perpendicular to each other.-
RELATED ARTICLE :
- lowes pressure treated stair treads
- metal roof stairs
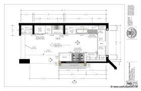
Impressive Although the corner necessitates some clever cabinetry solutions to make it practical the open plan design of the L-shaped kitchen offers great flexibility in the placement of appliances and work zones.
Quickly get a head-start when creating your own kitchen layout. A free customizable simple kitchen layout template is provided to download and print. We have included both kitchens in separate and open plan type spaces. Here are some considerations for the dining area kitchen and deliverytakeout zone.
There is also a work triangle in the L-shaped kitchen.Floor plan examples include assembly line layout island layout zone layout and open kitchen layout.The island design is the best restaurant kitchen layout for venues with ample kitchen space for staff to move around.5 Basic Kitchen Design Layouts One-Wall Kitchen Layout.When space is narrow and limited such as in condos small homes and apartments.An island layout can make for easier cleaning.
7 Examples of Restaurant Kitchen Layouts. A hostess or bus person can be assigned the task of refilling paper products and taking out the trash. The general rule is that for every seat in the restaurant is necessary to provide at least 5 square feet of kitchen space. Source Equipment for the commercial kitchen that meets all the standards of health and safety. The circular flow of the kitchen allows chefs to congregate in the same area thus improving communication and supervision of staff. Hanging drawers are used to solve the space issue. This layout also works well with restaurants that are only producing one item such as a Subway or Chipotle. Develop a Menu That You Love The menu dictates everything in your restaurant. Youll want to start by outlining the kitchen space which many in the industry think should occupy about 40 of your total square footage. Restaurant Layout Components Examples and Templates. On average and for fine dining the range is 18-20 square feet 549-609 cm per person. The assembly line layout is the perfect design for restaurants with a high-volume kitchen because it moves food along quickly. Combination of yellow and white is the sober color to decorate a restaurant kitchen. In a perfect scenario all ingredients refrigeration and cooking appliances will be at arms length in any workstation. A small restaurant floor plan should have a proper kitchen to dining space ratio. The layout is more straightforward as everything is placed in a row against one wall of the kitchen which makes the most sense with limited space. The line configuration promotes a good flow of ingredients from one station to the other. Here we discuss the restaurant kitchen design ideas. A commercial kitchen needs industrial-grade equipment that will withstand a busy restaurant schedule. 25 Best small restaurant kitchen layout ideas restaurant kitchen kitchen layout commercial kitchen design small restaurant kitchen layout 25 Pins 3y J Collection by John Mcdonald Similar ideas popular now Restaurant Design Small Commercial Kitchen Layout - Kitchen Layout and Decorating Ideas Restaurant Kitchen Kitchen Sets Restaurant Design. Next lets review the essential components to tackle while working on your restaurant layout. Restrooms should be checked at least once at the start of every shift preferably more often if it is busy. Restaurant design concept restaurant design so. Start by creating a menu theme. The galley layout is one of the best options for a kitchen with tight spaces. Here are a few examples of restaurants across different segments that. A kitchen design where all appliances cabinets and countertops are positioned along one wall. As I mentioned earlier every restaurant kitchen is different and different restaurant concepts will require different designs. Template Restaurant Floor Plan for Kids This template shows the restaurant floor plan for kids. 1 Small Galley Kitchen Double Galley. This kitchen design is the most popular type of restaurant layouts. In an L-shaped kitchen layout there are two countertops and these countertops are arranged so that they are making a right triangle. Most experts agree you should allocate 60 percent of your total space for the dining area and 40 percent of your entire space for the kitchen and prep area. Restaurant Design with our Restaurant Floor Plans Software. You can also place a kitchen island in the L-shaped kitchen. With abundant built-in kitchen symbols in Edraw floor plan software you can easily visualize your design ideas. With abundant built-in kitchen symbols in Edraw floor plan software you can easily visualize your design ideas. This kitchen design is the most popular type of restaurant layouts. Here are a few examples of restaurants across different segments that. Next lets review the essential components to tackle while working on your restaurant layout. You can also place a kitchen island in the L-shaped kitchen. The layout is more straightforward as everything is placed in a row against one wall of the kitchen which makes the most sense with limited space. On average and for fine dining the range is 18-20 square feet 549-609 cm per person. Hanging drawers are used to solve the space issue. 7 Examples of Restaurant Kitchen Layouts. Restaurant Design with our Restaurant Floor Plans Software. An island layout can make for easier cleaning. When space is narrow and limited such as in condos small homes and apartments. 5 Basic Kitchen Design Layouts One-Wall Kitchen Layout. The island design is the best restaurant kitchen layout for venues with ample kitchen space for staff to move around. Most experts agree you should allocate 60 percent of your total space for the dining area and 40 percent of your entire space for the kitchen and prep area. Floor plan examples include assembly line layout island layout zone layout and open kitchen layout. There is also a work triangle in the L-shaped kitchen. Here are some considerations for the dining area kitchen and deliverytakeout zone. We have included both kitchens in separate and open plan type spaces. In an L-shaped kitchen layout there are two countertops and these countertops are arranged so that they are making a right triangle. A free customizable simple kitchen layout template is provided to download and print. Quickly get a head-start when creating your own kitchen layout. Heres our guide for how to set up a small commercial kitchen in 3 easy steps. The kitchen is the heart and soul of a restaurant. 1 Small Galley Kitchen Double Galley. Restaurant kitchen design trends include an increased focus on sustainability compact equipment designed for smaller square footage and visually appealing equipment for open kitchen layouts. Another given is the triangulation rule that governs the relationship between storage preparation and cleaning. The floor plans are necessary for architects builders designers. This means that in a restaurant with 60 seats restaurant kitchen should take an area of 300 square feet. Template Restaurant Floor Plan for Kids This template shows the restaurant floor plan for kids. Safety regulations for capacity in accordance with square footage of the restaurant influences the layout and seating of a restaurant. Its very simple convenient and quick to design the professional looking Floor Plans of any difficulty in ConceptDraw DIAGRAM. You want your food to set you apart from the competition in your area.









